Projet indépendant / en
collaboration avec Rawane Abou Abbas
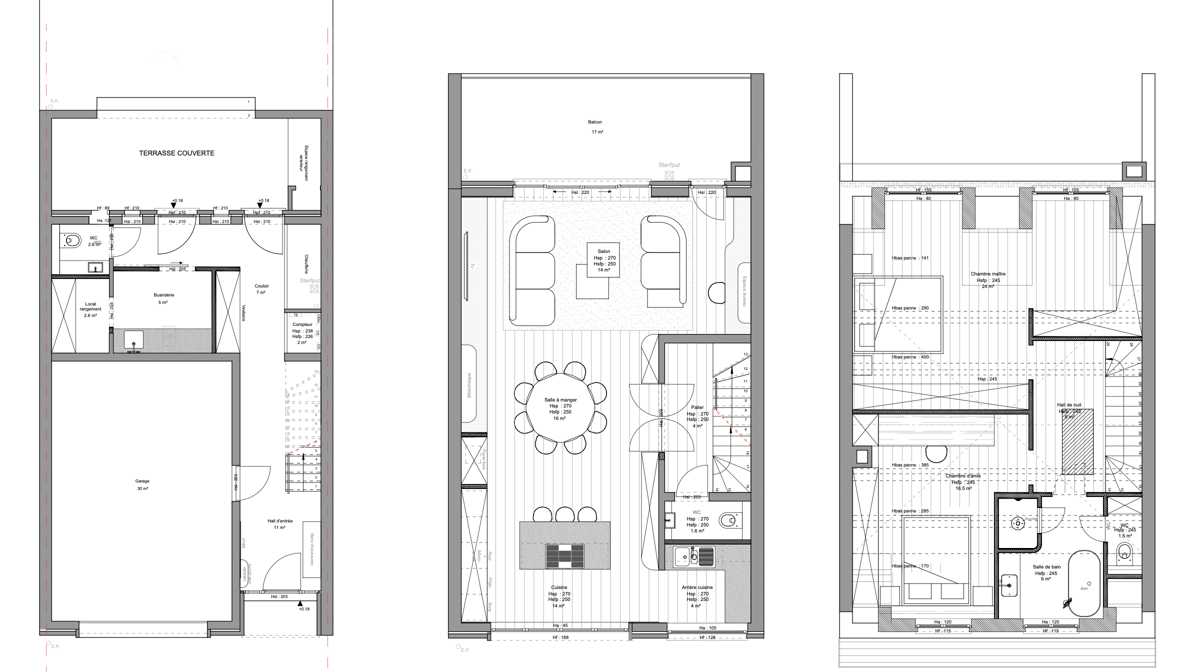
2.1 ABN :
Rénovation complète d’une maison incluant une menuiserie sur mesure au style épuré et élégant.
Logiciels utilisés :
Autocad - Sketchup - Twinmotion
Projet indépendant / en
collaboration avec Rawane Abou Abbas
Logiciels utilisés :
Autocad - Sketchup - Twinmotion